
Un projet ancré dans une démarche prospective - Perspective générale du projet

Du collectif à l’individuel , une journée au sein du projet - Vue depuis le mail sur l’immeuble

Un séjour urbain aux nombreux espaces ouverts - Coupe et plan des différentes séquences urbaines

Un séjour urbain aux nombreux espaces ouverts - Coupe et plan des différentes séquences urbaines

Un séjour urbain aux nombreux espaces ouverts - Coupe et plan des différentes séquences urbaines

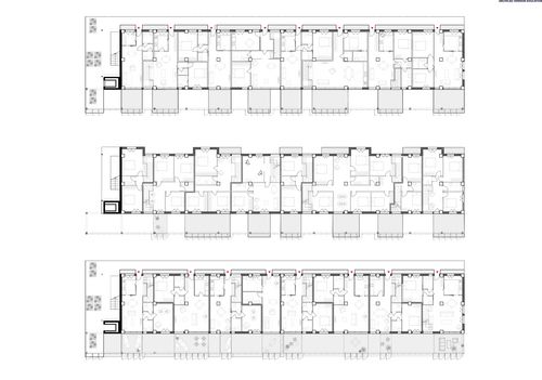
La flexibilité des logements - Plan de principe du R+1 au R+3

La flexibilité des logements - Axonométries

Un bâtiment qui se tourne vers le paysage - Coupe perspective
- PFE
CITEE Gwladys
La ceinture de rouille, reconversion d’une friche industrielle : l’ancienne usine des Eaux d’Ivry-sur-Seine
2018
Directeur(s) d'étude(s) : Hervé DUBOIS
Toute la réflexion de ce projet se base sur la protection du patrimoine industriel. À l’échelle urbaine le tracé de la ZAC Confluences venait fracturer le site en deux, à l’échelle architecturale la proposition de la ville de Paris d’y implanter un centre d’hébergement pour femmes isolées, couples et familles de migrants vient fermer et replier le site sur lui même sans l’ouvrir vers la ville et les habitants ni vers son fleuve. C’est par le biais d’activités culturelles réalisées à l’extérieur que l’échange et le partage peu s’opérer. L’enjeu sera donc de se positionner dans une démarche pérenne avec une réelle volonté d’insérer aux mieux et durablement les réfugiés dans nos villes. Il est donc important de re-questionner la notion d’accueil de migrants pour que cette dernière puisse s’intégrer sur l’ancienne usine des Eaux. La réponse apportée à cette problématique d’intégration d’une population en marge de la société est d’utilisée l’usine des eaux comme un observatoire de la rivière en ville et des nouvelles façons d’habiter, mais aussi en conservant l’identité de l’usine son caractère productif. Cette dernière notion est importante, car elle permet de mettre en place des activités ludiques, pédagogiques et participatives qui favorisent la rencontre et l’échange avec les personnes qui fréquentent le site, mais aussi avec l’environnement dans lequel on se trouve.









