Directeur(s) d'étude(s) : Anne-Sophie BRYCHCY, Stéphane THOMASSON
Enseignants : Alexandar SARDAREV, Sébastien MÉMET
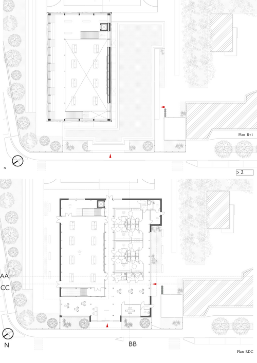
Le projet proposé aux étudiants consiste en la conception d'un gymnase multi sport dans l'enceinte du collège Henri Sellier à Bondy (93), inscrit dans un environnement péri-urbain hétérogène.
Ce programme permet de donner les premiers réflexes conceptuels pour la réalisation d'équipements publics : image institutionnelle, valeur d'usage (rapport entre locaux avec contraintes dimensionnelles, acoustiques d'éclairement, différentes - intime/public) et les flux (chaussures de ville / de sport). Cet équipement a aussi l'avantage d'associer la conception à la structure (charpente bois et son design - béton...) et d'introduire les notions de conception bioclimatique (rapport au soleil, au vent, aux précipitations) et l'usage des espaces extérieurs. Les liaisons fonctionnelles avec le collège existant sont à déterminées.
Le projet s'inscrit dans l'une des thématiques retenues pour la 2ème année de licence dans le programme de l'ENSAPV (structure et matière) en s'attachant à un programme sportif sur un terrain existant, avec la volonté d'initier les étudiants à la pratique du projet sous certains de ses aspects opérationnels (méthode de travail, techniques de construction, insertion dans le réel, etc.), c'est à dire de rendre la réalité du construire moteur de la conception et non simple conséquence.
Le projet est l'occasion d'aborder les notions de valeur d'usage dans un équipement simple avec ses premières règles normatives et techniques et de s'interroger sur la valeur institutionnelle d'un équipement public.








