
Vue sur le cour du bâtiment et sur l'axe reliant les rues existantes

Axonométrie programmatique - la forme de surélévation en contraste avec la forme orthogonale du l'existant

Plan du RDC - Logements etudiants, Salle de travail, Salle d'exposition

Exemple d'un logement en duplex - 150m2 pour 5 personnes

Exemple d'un logement en duplex - 150m2 pour 5 personnes

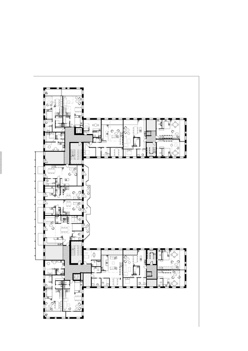
Plan d'etage R+1 - Les logements duplex bas

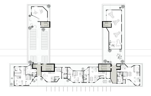
Plan Surélévation - Les espaces commun, garderie, cuisine commune
Enseignants : Sylvia LACAISSE
Le projet porte sur la réhabilitation du bâtiment hospitalier Marcel Lelong, situé dans le 14e arrondissement sur le site de l'hôpital Saint Vincent de Paul. L'hôpital fait l'objet depuis sa désaffectation en 2012 d'occupations diverses temporaires. Le site fait aujourd'hui l'objet du nouveau projet de réaménagement global conservant certains bâtiments.
Le bâtiment Lelong - situé sur un nouvel axe reliant les rues existantes - fait l'objet de mes études. Le projet assume une nouvelle fonction - fonction résidentielle avec des espaces partagés entre les habitants et population plus large. Les fonctions accentuent le passé du site.
La densification sous forme de surélévation héberge une garderie - qui prolonge des fonctions précédentes qui se trouvaient dans le bâtiment , un potager - qui dialogue avec le sol, et une cuisine et terrasse partagées - où nous pourrons faire connaissance avec nos voisins.
Le bâtiment ainsi que les logements sont pensés avec le contexte de la crise sanitaire avec les espaces de travail en RDC et les dispositifs architecturaux permettant aux habitants de décider de la nature des leurs espaces de vie selon leurs besoins.








