
PERSPECTIVE DE SYNTHESE DU PROJET

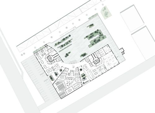
PLAN MASSE DU PROJET

PERSPECTIVE TRANSVERSALE DU PROJET

AXONOMETRIE DU CENTRE NUMERIQUE ET DES ESPACES CONVERTIBLES

AXONOMETRIE DE LA TRAVERSEE DE L'ILOT

COUPE DE SECTION DES MODULES D'HEBERGEMENT D'URGENCE

PLAN DE REZ-DE-CHAUSSEE DU CENTRE NUMERIQUE

AXONOMETRIE DE SECTION DES MODULES D'HEBERGEMENT D'URGENCE
Notre site est à Ivry-sur-Seine, dans le Val-de-Marne. S’étendant sur 13 419 m², il se situe entre le cimetière de Paris, le quartier des grands ensembles Pierre et Marie Curie, un quartier pavillonnaire et la Zac du plateau dont le site fait partie.
Le programme de notre projet est défini par plusieurs axes : L’hébergement de personnes en demande d’asile, le développement de l’activité numérique, déjà pensé à Ivry-sur-Seine et l’aménagement d’espaces publics végétalisés liant les entités du quartier. Ainsi, le programme se décompose en hébergements de type wikihouses, fabriqués in Situ dans un centre numérique de « fabrique urbaine » composé d’un pôle de formation, de fabrication et de coworking. Un bâtiment central, s’étendant sur la longueur de la parcelle en reprenant les qualités traversantes de celle-ci, sera composé de services collectifs pour les modules d’hébergement temporaire, de commerces et dont la toiture apparait comme une émergence permettant la traversé de l’ilot et composant l’espace public.
Dans un souci écologique, le centre numérique sera construit sur un bâtiment entrepôt existant. Sur ce dernier, sont disposés des bâtiments convertibles en logements ou bureaux en R+6.









