- PFE
Arnaud GREDER
Réhabilitation d’un ensemble industriel minier alsacien: l’ « éco-carreau » Rodolphe
2017
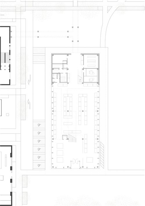
Ce projet de fin d’études s’exerce à proposer une réhabilitation écologique d’un grand ensemble minier alsacien. Imaginé dans le cadre de mes études à l’École Nationale Supérieure d’Architecture de Paris-Val de Seine, il est présenté ici sous la forme d’un condensé de la présentation soutenue en juin 2017. Le projet urbain s’attarde à proposer un ensemble programmatique varié et adapté aux particularités spatiales du lieu. Ce choix permet d’imaginer un projet réaliste qui puise sa force dans la complémentarité des éléments qui le constituent. Plusieurs axes sont étudiés ; l’axe muséal qui lie les espaces d’exposition existants ; l’axe productif au travers de l’agriculture et des espaces de travail en co-working ; l’axe hôtelier en développant une structure d’accueil pour le tourisme et le travail ; l’axe sportif avec une salle d’escalade ; et enfin l’axe énergétique qui gère les « déchets » du site et les valorisent en chaleur, électricité ou gaz. Le projet architectural se focalise sur la construction d’une halle en place de l’ancien bâtiment des vestiaires et sur le bâtiment des bureaux. Les nouvelles halles constituent l’élément central du site et de sa programmation. Elles contiennent un marché, donnant la part belle aux produits cultivés et transformés sur place, un restaurant, ainsi que l’entrée et la distribution du musée.









