Ce projet de fin d’études s’inscrit dans une dynamique à plusieurs échelles : territoriale, urbaine et architecturale. La première partie de ce travail, réalisée en groupe, repose sur une analyse et un projet commun de réensauvagement du territoire de la boucle de Chanteloup, dans les Yvelines. Notre stratégie consiste à sanctuariser les terres non construites en créant un nouveau massif forestier ainsi qu’une promenade en lisière.
A l’échelle urbaine, le projet s’oriente vers le traitement paysager de cette lisière, comme une interface de transition entre la ville de Carrières-sous-Poissy et la future forêt, afin d’assurer une limite durable à l’étalement urbain, tout en apportant ponctuellement les équipements et commerces qui manquent à la vie du quartier.
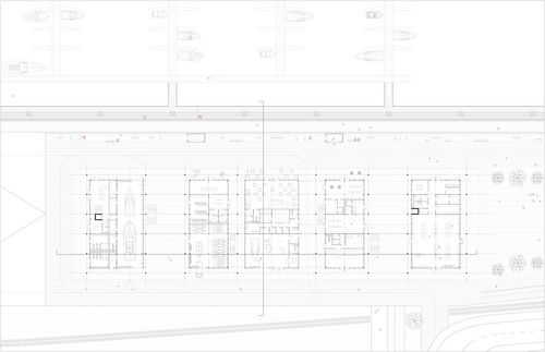
Situé en bout de cette promenade de lisière, le port de plaisance Saint Louis représente une opportunité par son paysage remarquable sur la Seine et les reliefs avoisinants, aujourd’hui non exploité. Ainsi le projet architectural s’attèle à requalifier les équipements du port, afin d’insuffler un nouveau dynamisme autour de ce lieu tout en permettant aux habitants des réapproprier le paysage de la Seine. Le programme mixte est constitué d’un pôle nautique (capitainerie, atelier réparation bateaux et formation bateau-école), un pôle de loisir (restaurant, café, loueur de canoës/vélos), ainsi qu’un pôle commercial de proximité.









